Shophouse và Biệt thự: Đâu sẽ là lựa chọn phù hợp trong giai đoạn này?
Sep 14, 2025
Trong bối cảnh thị trường bất động sản Thành phố Hồ Chí Minh biến động mạnh, việc chọn đúng sản phẩm để đầu tư là mối quan tâm hàng đầu. Giữa shophouse và biệt thự cao cấp, đâu mới là “cửa sáng” cho nhà đầu tư? Hãy cùng phân tích.
Shophouse – Lợi thế thương mại nhưng tiềm ẩn rủi ro
- Ưu điểm:
- Vị trí thường nằm trên trục đường chính hoặc trong khu đô thị đông dân cư.
- Kết hợp hai chức năng: vừa ở vừa kinh doanh.
- Giá trị thương mại cao nếu nằm trong khu vực có mật độ dân cư và nhu cầu mua sắm lớn.
- Nhược điểm:
- Giá bán ngày càng cao, nhiều dự án định giá vượt quá giá trị thật.
- Thực tế nhiều shophouse trong các khu đô thị mới lại “đóng cửa im lìm”, ít hoạt động kinh doanh hiệu quả.
- Xu hướng thương mại điện tử phát triển mạnh khiến mô hình bán lẻ truyền thống gặp khó.
- Thanh khoản không phải lúc nào cũng tốt, phụ thuộc vào sức sống của cả khu đô thị.
- ==> Nếu nhà đầu tư không có một mục đích cụ thể hay một ngành nghề kinh doanh nhất định trên chính căn shophouse, phụ thuộc nhiều vào việc cho thuê hoặc sử dụng đòn bẩy tài chính quá lớn (trong bối cảnh tỷ giá chênh lệch cao, lãi suất có xu hướng tăng) cộng thêm tình hình kinh tế vĩ mô ảm đạm thì dễ bị áp lực thanh khoản làm hạ giá bán. Các shophouse ở các khu đô thị thiếu sức sống, lưu lượng ít cũng khó kinh doanh hiệu quả để tạo ra giá trị bền vững.

Biệt thự cao cấp – Không gian sống và tài sản khẳng định vị thế
- Ưu điểm:
- Biệt thự gắn liền với đất, mang tính hữu hạn, đặc biệt khi nằm trong khu đô thị được quy hoạch đồng bộ, an ninh 24/7.
- Đáp ứng nhu cầu thật của tầng lớp thượng lưu: không gian sống riêng tư, tiện nghi, môi trường xanh, an toàn cho gia đình.
- Giá trị gia tăng ổn định, ít phụ thuộc vào biến động ngắn hạn của thị trường bán lẻ.
- Dễ dàng cho thuê dài hạn với đối tượng khách ngoại quốc hoặc chuyên gia (trong khu vực có định hướng quốc tế, tài chính hoặc công nghệ cao).
- Nhược điểm:
- Vốn đầu tư ban đầu cao, phù hợp với tệp khách hàng có tiềm lực tài chính mạnh.
- Tính thanh khoản không nhanh bằng các sản phẩm căn hộ phổ thông, nhưng bù lại giữ giá tốt.

Xu hướng 1–2 năm tới: Bức tranh rõ nét
- Shophouse sẽ tiếp tục phân hóa: chỉ những sản phẩm nằm trong khu đô thị đông đúc, quy hoạch tốt, có những dự án hạ tầng trọng điểm, thu hút lưu lượng dồi dào thì có thể duy trì giá trị. Các sản phẩm “đại trà” sẽ gặp khó khăn vì áp lực cạnh tranh từ thương mại điện tử và mức định giá cao.
- Biệt thự cao cấp được dự báo sẽ duy trì sức hút, nhất là tại các khu vực đang hình thành trung tâm mới như Thủ Thiêm, Thảo Điền, An Phú. Nhu cầu của giới thượng lưu đối với không gian sống riêng biệt, xanh và an toàn được xem là “miễn nhiễm” với chu kỳ ngắn hạn của thị trường.

Liên hệ Senturia An Phú
Trong bức tranh này, Senturia An Phú nổi lên như một lựa chọn cân bằng:
- Vị trí trung tâm khu Đông, kết nối nhanh tới Thủ Thiêm và trung tâm Sài Gòn. Mặt tiền đường song hành cao tốc, trong tương lai là ga đường sắt kết nối sân bay Long Thành và tuyến metro số 2.
- Quy hoạch đồng bộ, an ninh, nhiều tiện ích nội khu. Ngoại khu là đại đô thị Rạch Chiếc, với định hướng là trung tâm văn hóa - thể thao - du lịch quy mô tầm khu vực.
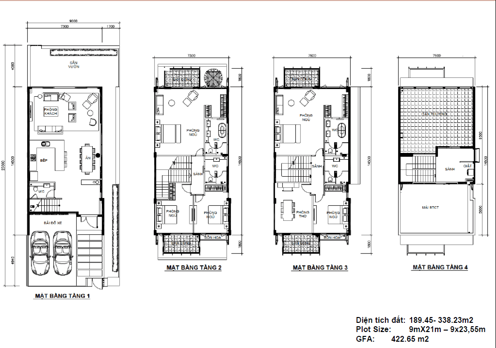
- Sản phẩm biệt thự song lập chỉ có 62 căn, mang tính hữu hạn, đáp ứng nhu cầu ở thật của giới thượng lưu, riêng biệt và đẳng cấp.
Đây không chỉ là nơi an cư thích hợp, đầy đủ tiện ích, nhiều mảng xanh, gần trung tâm mà còn là tài sản có giá trị bền vững, khai thác được nhiều mục đích và khẳng định được vị thế tại trung tâm mới.
Anh/chị tìm hiểu thêm các bài viết liên quan, vui lòng click tại đây.
